天神橋7丁目店舗付住宅

17.48万円 (0.67万円/坪) 管理/共益費 -

大阪府大阪市北区天神橋7丁目14-5

地下鉄堺筋線「天神橋筋六丁目」駅徒歩5分

大阪環状線「天満」駅徒歩13分

地下鉄堺筋線「扇町」駅徒歩14分

価格
17.48万円(0.67万円/坪) 管理/共益費 -
面積
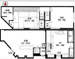
25.99坪(85.94㎡)
所在地
大阪府大阪市北区天神橋7丁目14-5
築年
1965年3月(築60年)
駐車
交通

地下鉄堺筋線天神橋筋六丁目」駅 徒歩5分

大阪環状線天満」駅 徒歩13分

地下鉄堺筋線扇町」駅 徒歩14分

天神橋7丁目店舗付住宅の基本情報

物件名
天神橋7丁目店舗付住宅
価格
17.48万円(0.67万円/坪)
管理/共益費
-
築年月
1965年3月(築60年)
総戸数
1戸
所在地
大阪府大阪市北区天神橋7丁目14-5
交通

地下鉄堺筋線天神橋筋六丁目」駅 徒歩5分

大阪環状線天満」駅 徒歩13分

地下鉄堺筋線扇町」駅 徒歩14分

天神橋7丁目店舗付住宅の詳細情報

設備条件
駐車場/月額
無/-
戸数
1戸 / -
取引態様
一般媒介

天神橋7丁目店舗付住宅で募集中の物件

  1. 101

    25.99坪 (85.94㎡)

    17.48万円(6725.43円/坪)

周辺施設

  • セブンイレブン大阪天神橋8丁目の画像

    コンビニエンスストア

    セブンイレブン大阪天神橋8丁目

    234m(3分)

  • (株)ライフコーポレーション 本庄店の画像

    スーパー

    (株)ライフコーポレーション 本庄店

    337m(5分)

  • 天神橋商店街の画像

    ショッピングセンター

    天神橋商店街

    442m(6分)

  • 阪急オアシスの画像

    スーパー

    阪急オアシス

    496m(7分)

  • りそな銀行 天六支店の画像

    銀行

    りそな銀行 天六支店

    505m(7分)

  • セブンーイレブン大阪本庄西2丁目店の画像

    コンビニエンスストア

    セブンーイレブン大阪本庄西2丁目店

    633m(8分)

  • 交番の画像

    警察

    交番

    706m(9分)

近隣の物件

  1. 大阪市北区池田町

    - (21.06㎡)

    12.1万円(1.9万円/坪)

  2. 大阪市北区黒崎町

    17.53坪 (57.96㎡)

    32.78万円(1.87万円/坪)

  3. 大阪市北区曾根崎1丁目

    42.59坪 (140.81㎡)

    121.84万円(2.86万円/坪)

天神橋7丁目店舗付住宅

お気軽にお問い合わせください

LINEからお問い合わせ 無料お問い合わせ

ミニミニFCなんば店

06-6633-2100

9:00 ~ 18:30

(休:無休)

ページトップへ戻る